Trzpienie frezarskie do głowic frezarskich nasadzanych są niezastąpionym narzędziem w każdej narzędziowni frezarskiej. Służą do zamocowania głowicy frezarskiej we wrzecionie frezarki. Same głowice frezarskie służą do obróbki średnio dokładnej oraz zgrubnej.
Najbardziej powszechnym typem są głowice freazrskie do planowania typ wg. Dolfamex 220.17. Są to głowice przeznaczone na płytki trójkątne TPKN 2204 PPR.
Podział trzpieni frezarskich ze względu na rodzaj stożka
Trzpień frezarski ze względu na mocowanie w maszynie możemy podzielić na mocowanie 5 rodzai.
Dobór trzpienia do maszyny i głowic frezarskich
Aby dobrać odpowiedni trzpień powinniśmy:
- rozpoznać model stożka, jaki posiadamy w maszynie,
- sprawdzić średnicę otworu, jaki posiada głowica frezarska bądź frez.
Na tej podstawie możemy dobrać odpowiedni trzpień dla naszych potrzeb.
Wymiary trzpieni frezarskich
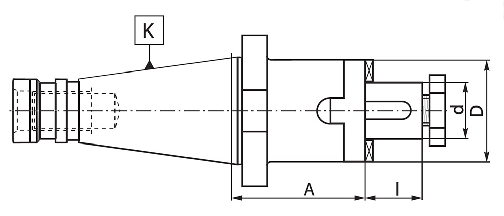
Trzpień 7301 DIN-69871-A
Norma DIN-69871-A przeznaczona jest zarówno dla maszyn konwencjonalnych jak i sterowanych numerycznie CNC. Na kołnierzu posiada 2 wycięcia przelotowe oraz 1 wycięcie pozycjonujące oprawkę we wrzecionie (i magazynie narzędzi, jeśli takowy posiada maszyna). Przeznaczony jest do wymiany ręcznej oraz automatycznej. Jest to jeden z najbardziej rozpowszechnionych typów stożka.
| Wymiary trzpienia 7301 | ||||
| Stożek K 7:24 | d [mm] | A [mm] | l [mm] | d1 [mm] |
| 40 | 16 | 55 | 17 | 32 |
| 40 | 22 | 55 | 19 | 40 |
| 40 | 27 | 55 | 21 | 48 |
| 40 | 32 | 60 | 24 | 58 |
| 40 | 40 | 60 | 27 | 70 |
| 50 | 16 | 55 | 17 | 32 |
| 50 | 22 | 55 | 19 | 40 |
| 50 | 27 | 55 | 21 | 48 |
| 50 | 32 | 55 | 24 | 58 |
| 50 | 40 | 55 | 27 | 70 |
| 50 | 50 | 70 | 30 | 90 |
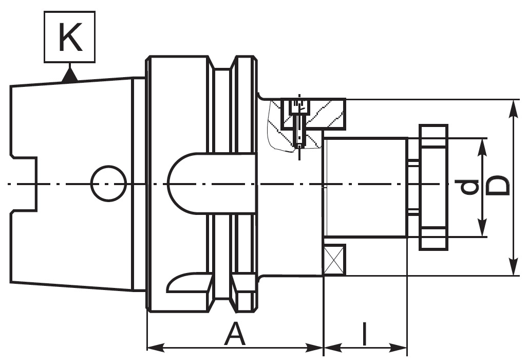
Trzpień 7361 MAS-403-BT
Norma MAS-403-BT posiada na kołnierzu 2 wycięcia nieprzelotowe, przeznaczona jest zarówno dla maszyn konwencjonalnych jak i sterowanych numerycznie CNC. Można stosować tę odmianę zarówno do wymiany ręcznej oraz automatycznej.
| Wymiary trzpienia 7361 | ||||
| Stożek K 7:24 | d [mm] | A [mm] | l [mm] | d1 [mm] |
| 40 | 16 | 55 | 17 | 32 |
| 40 | 22 | 55 | 19 | 40 |
| 40 | 27 | 55 | 21 | 48 |
| 40 | 32 | 60 | 24 | 58 |
| 40 | 40 | 60 | 27 | 70 |
| 50 | 16 | 70 | 17 | 32 |
| 50 | 22 | 70 | 19 | 40 |
| 50 | 27 | 70 | 21 | 48 |
| 50 | 32 | 70 | 24 | 58 |
| 50 | 40 | 70 | 27 | 70 |
| 50 | 50 | 70 | 30 | 90 |
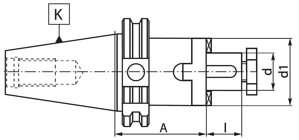
Trzpień 7332 DIN-2080
Norma DIN-2080 posiada na kołnierzu 2 wycięcia przelotowe, przeznaczona jest dla maszyn konwencjonalnych (wymiana ręczna). Tolerancja stożka AT4.
| Wymiary trzpienia 7332 | ||||
| Stożek K 7:24 | d [mm] | A [mm] | l [mm] | D [mm] |
| 30 | 16 | 35 | 17 | 32 |
| 30 | 16 | 50 | 17 | 32 |
| 30 | 16 | 73 | 17 | 32 |
| 30 | 22 | 35 | 19 | 40 |
| 30 | 22 | 50 | 19 | 40 |
| 30 | 22 | 73 | 19 | 40 |
| 30 | 27 | 35 | 21 | 48 |
| 30 | 27 | 50 | 21 | 48 |
| 30 | 27 | 73 | 21 | 48 |
| 30 | 32 | 50 | 24 | 58 |
| 40 | 16 | 37 | 17 | 32 |
| 40 | 16 | 52 | 17 | 32 |
| 40 | 16 | 75 | 17 | 32 |
| 40 | 22 | 37 | 19 | 40 |
| 40 | 22 | 52 | 19 | 40 |
| 40 | 22 | 75 | 19 | 40 |
| 40 | 27 | 37 | 21 | 48 |
| 40 | 27 | 52 | 21 | 48 |
| 40 | 27 | 75 | 21 | 48 |
| 40 | 32 | 41 | 24 | 58 |
| 40 | 32 | 52 | 24 | 58 |
| 40 | 32 | 75 | 24 | 58 |
| 40 | 40 | 45 | 27 | 70 |
| 40 | 40 | 52 | 27 | 70 |
| 40 | 40 | 75 | 27 | 70 |
| 50 | 16 | 55 | 17 | 32 |
| 50 | 16 | 78 | 17 | 32 |
| 50 | 22 | 55 | 19 | 40 |
| 50 | 22 | 78 | 19 | 40 |
| 50 | 27 | 55 | 21 | 48 |
| 50 | 27 | 78 | 21 | 48 |
| 50 | 32 | 55 | 24 | 58 |
| 50 | 32 | 78 | 24 | 58 |
| 50 | 40 | 55 | 27 | 70 |
| 50 | 40 | 78 | 27 | 70 |
| 50 | 50 | 55 | 30 | 90 |
| 50 | 50 | 78 | 30 | 90 |
Trzpień 7332 DIN-2080
Uchwyt na stożku Morse’a z gwintem przeznaczony dla maszyn konwencjonalnych oraz wiertarek.
| Wymiary trzpienia 7430 | |||
| Stożek K 7:24 | d [mm] | A [mm] | l [mm] |
| 2 | 16 | 46 | 17 |
| 2 | 16 | 61 | 17 |
| 2 | 22 | 46 | 19 |
| 2 | 22 | 61 | 19 |
| 3 | 16 | 48 | 17 |
| 3 | 16 | 63 | 17 |
| 3 | 22 | 48 | 19 |
| 3 | 22 | 63 | 19 |
| 3 | 27 | 48 | 21 |
| 3 | 27 | 63 | 21 |
| 3 | 32 | 63 | 24 |
| 4 | 16 | 55 | 17 |
| 4 | 16 | 70 | 17 |
| 4 | 22 | 55 | 19 |
| 4 | 22 | 70 | 19 |
| 4 | 27 | 55 | 21 |
| 4 | 27 | 70 | 21 |
| 4 | 32 | 55 | 24 |
| 4 | 32 | 70 | 24 |
| 4 | 40 | 70 | 27 |
| 5 | 16 | 75 | 17 |
| 5 | 22 | 75 | 19 |
| 5 | 27 | 75 | 21 |
| 5 | 32 | 75 | 24 |
| 5 | 40 | 75 | 27 |
| 5 | 50 | 75 | 30 |
Trzpień 7888 DIN-69893-A
Chwyt ze stożkiem do wymiany automatycznej. Przeznaczony do obróbki precyzyjnej oraz HSC (High speed cutting) Tolerancja kąta stożka AT3
| Wymiary trzpienia 7888 | ||||
| K HSK-A | d [mm] | A [mm] | l [mm] | D [mm] |
| 63 | 16 | 45 | 17 | 32 |
| 63 | 16 | 80 | 17 | 32 |
| 63 | 16 | 145 | 17 | 32 |
| 63 | 22 | 50 | 19 | 40 |
| 63 | 22 | 80 | 19 | 40 |
| 63 | 22 | 150 | 19 | 40 |
| 63 | 27 | 60 | 21 | 48 |
| 63 | 27 | 155 | 21 | 48 |
| 63 | 32 | 60 | 24 | 58 |
| 63 | 40 | 60 | 27 | 7 |
Producenci
W Polsce największym producentem trzpienie jest firma Bison-Bial oddział w Kolnie. Drugim polskim producentem jest młodsza firm APX technologie. Obaj producenci posiadają produkty warte polecenia oraz wysokiej, jakości.







